
Partner Article
Successful appeal to build homes near Bishop’s Cleeve
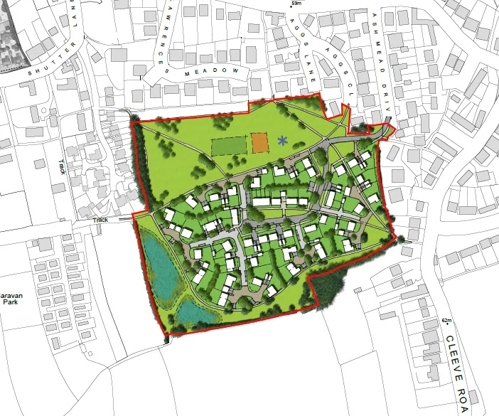
Fifty new homes are to be built in a village near Bishop’s Cleeve following a five-day Public Inquiry.
L&Q Estates appealed the decision of Tewkesbury Borough Council’s Planning Committee to refuse permission to grant outline planning permission for the development on land off Ashmead Drive in Gotherington despite being recommended for approval by officers.
The decision by the independent Government appointed planning inspector means 50 homes including 40 per cent social housing can now be created.
The application was in outline so establishes the principle of development on the site. Further reserved matters applications will need to be made for detailed matters such as siting, external appearance and landscaping.
The development will include a multi-use games area, a children’s play area and a multi-purpose community area suitable for holding village events for the existing and new residents of Gotherington. In addition, financial contributions will be provided for upgrade work to bus stops as well as contributions to Gloucestershire County Council for education and libraries.
The inspector ruled that the proposal would not be harmful to the social well-being and vitality of the village.
In her report, the inspector said: “Given the on-site facilities and the many benefits new housing can bring by enabling local people to stay local, providing family homes and contributing to the local economy, it could lead to an enhancement of the vitality and well-being in the village.
“Although I heard comments from interested parties that there is little need for affordable housing in the village itself, on the substantive evidence before me, there is little affordable housing stock in the village and there is a clear need in the Borough. This proposal would deliver a considerable amount of affordable housing, which is a benefit of significant weight.”
Richard Edwards, Group Planning Director at L&Q Estates, said work could get underway in late 2021 subject to the approval of the detailed reserved matters. He said: “We were pleased to be successful with this planning appeal for a number of reasons. There is an economic benefit to the development through the provision of jobs over the construction period as well as the contribution to the local economy throughout the lifetime of the development.
“The inspector accepted our evidence on social cohesion, confirming that the development would result in a nine per cent increase to the settlement and would not be harmful to the social well-being and vitality of the village. The inspector acknowledged that the additional residents would help to ensure that existing services and facilities continued to remain vibrant and viable.
“She also confirmed that the Council has less than two years supply of housing and that the delivery of this site would double the provision of affordable housing within Gotherington.
“We believe this development will not only increase the provision of housing and in particular, affordable housing, but will also improve the bio-diversity of the area and the on-site facilities such as public open spaces will prove beneficial to villagers.”
The team was led by specialist planning barrister Killian Garvey from Kings Chambers with expert evidence provided by Mark Sitch of Barton Willmore on planning matters and Ben Connolley of EDP on landscape issues.
This was posted in Bdaily's Members' News section by Matt Joyce .